Ben jij huurder van Stadswonen en ben jij op zoek naar een leuke plek voor jezelf in Rotterdam? Reageer dan op deze advertentie!
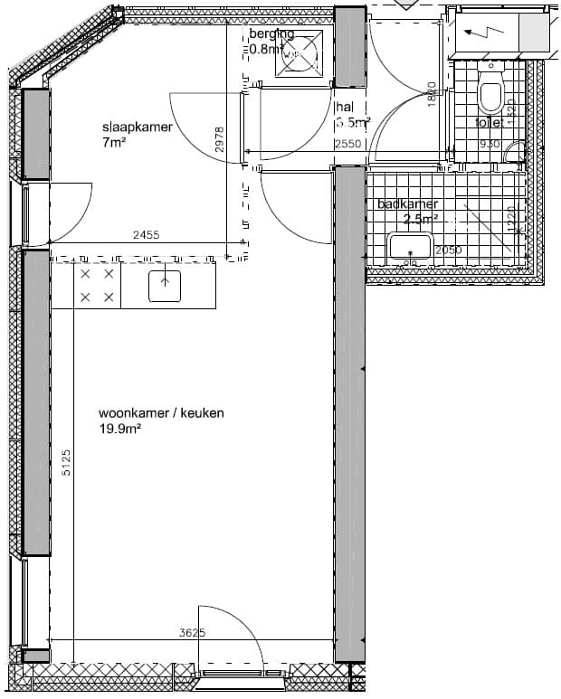
De woning is gelegen op de 7e etage van het woongebouw. Bekijk de plattegrond voor de indeling van het appartement.
Tussen de hoge kantoorgebouwen op de Kop van Zuid heb je echt het gevoel in de grote stad te wonen. In drie minuten loop je naar metrohalte Wilhelminaplein en wanneer je de Erasmusbrug over fietst, ben je zo in het centrum.
Let op! Het contract wordt aangegaan voor een periode van maximaal vijf jaren.
Inkomenseisen:
Maximaal (jaar)inkomen een-persoonshuishouden: 29.400,-
Maximaal (jaar)inkomen twee-persoonshuishouden: 39.925,-
Vanaf 21 jaar is volledige huurtoeslag mogelijk, kijk op Belastingdienst wat voor jouw situatie van toepassing is.
Laan op Zuid 89g
€ 713,02
Excl. servicekosten
AppartementReageer t/m 23-02

