Ben je op zoek naar een leuke plek voor jezelf en studeer jij voltijd aan een onderwijsinstelling in Rotterdam? Reageer op de advertentie!
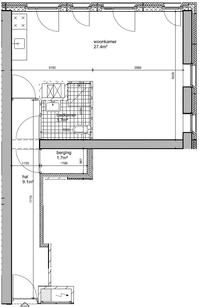
De studio is gelegen op de 2e etage van het woongebouw en beschikt over een eigen keuken en badkamer. Bekijk de plattegrond voor de indeling.
Hogeschool InHolland is om te hoek, net als een van de locaties van Hogeschool Rotterdam. Andere locaties en de Erasmus Universiteit bereik je makkelijk met de fiets of het ov.
LET OP! Vanaf 21 jaar is volledige huurtoeslag mogelijk, kijk op Belastingdienst wat voor jouw situatie van toepassing is.
Laan op Zuid 177q
€ 713,02
Excl. servicekosten


