Wil jij graag met een vriend of vriendin een hele unit huren?
Reageer dan allebei en geef aan met wie je wilt gaan huren.
Om in aanmerking te komen, dienen jullie beiden een bewijs van inschrijving voor het studiejaar 2025/2026 van een voltijdstudie in Rotterdam aan te leveren.
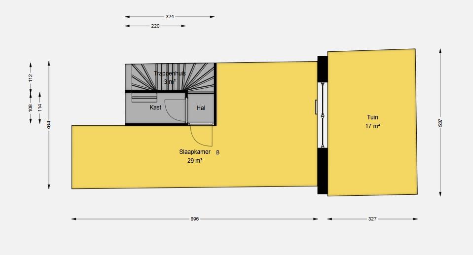
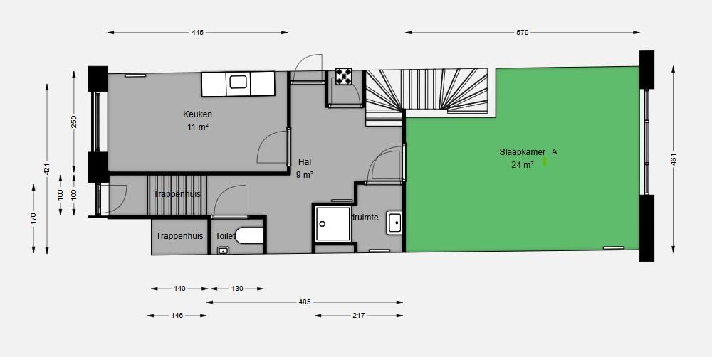
Je hebt allebei een eigen kamer en deelt de keuken/douche en toilet.
Het betreft een souterrain woning. Bij kamer B komt nog een nieuwe PVC vloer.
Woongebouw Kortenaerstraat
Dit woongebouw ligt in een rustige straat, midden in het centrum. Ideaal voor als je geconcentreerd wil studeren, perfect voor als je daarna erop uit gaat. Om de hoek van de Witte de With is altijd wat te doen, je woont vlakbij de grote musea van Rotterdam en – niet onbelangrijk – hogescholen en de universiteit zijn op fiets- of zelfs loopafstand.
Let op GEEN huurtoeslag mogelijk voor deze kamers.




















