LET OP! HUURTOESLAG ALLEEN MOGELIJK VANAF 23 JAAR.
Ben je op zoek naar een leuke plek voor jezelf en studeer jij voltijd aan een onderwijsinstelling in Rotterdam? Reageer op de advertentie!
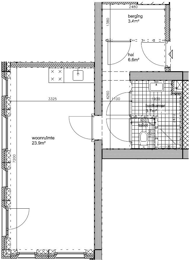
De studio is gelegen op de 11e etage van het woongebouw en beschikt over een eigen keuken en badkamer. Bekijk de plattegrond voor de indeling.
Hogeschool InHolland is om te hoek, net als een van de locaties van Hogeschool Rotterdam. Andere locaties en de Erasmus Universiteit bereik je makkelijk met de fiets of het ov.
Laan op Zuid 195s
€ 682,96
Excl. servicekosten
StudioReageer t/m 22-10


Studio
27m²
Omschrijving
Binnenkort studio voor student beschikbaar!
Kenmerken
Huurprijs totaal
Kale huur
Servicekosten
Type woonruimte
Oppervlakte
Adres
District
Energielabel
Advertentienummer
Woongebouw
Locatie
In de buurt
Studio
Beschikbaar vanaf
Reageer voor
21 november 2025
22 oktober 2025 23:45
Voorwaarden om te reageren
Toewijzing: door Stadswonen
Maximaal inkomen van € 28.375,- bruto per jaar
Minimum leeftijd van 17 jaar
Maximale leeftijd van 27 jaar
Doelgroepen: Student in Rotterdam