• grootste aanbod
  • vanaf € 325,-
  • geen borg
  • huurtoeslag
  • makkelijk doorverhuizen

Mauritsstraat 211

Stadscentrum

€ 807,27

Excl. servicekosten

AppartementReageer t/m 19-10
Centrale hal woongebouw Maurits en Jacob
Centrale hal woongebouw Maurits en Jacob
Gevel woongebouw Maurits en Jacob

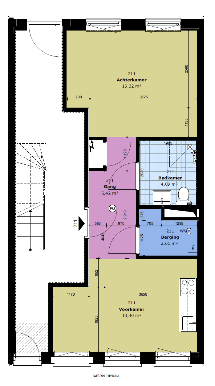
Appartement

32m²

2 Kamers

Omschrijving

Wonen in een gerenoveerd pand in het hartje Centrum van Rotterdam, interesse reageer op de advertentie

Binnenkort beschikbaar tweekamerappartement op de beletage in de Mauritsstraat. De woning is voorzien van PVC vloerafwerking, gordijnen, koelkast, inductiekookplaat en afzuigkap. De servicekosten bestaan uit verwarming, elektra, schoonmaak gemeenschappelijke ruimten etc. 

Er is geen lift aanwezig. 

Internet en water is niet bij de huur inbegrepen. 

Naast de woning is er een mooi atrium gerealiseerd waar alle bewoners elkaar kunnen ontmoeten en je je fiets veilig kan stallen. 

Deze woning heeft de beschikking over een eigen wasmachine aansluiting. 

Dit appartement is bestemd voor woningzoekenden die de onderstaande vragen met ja kunnen beantwoorden: 

Woon jij al bij Stadswonen? 

Ben je toe aan een volgende stap qua wonen omdat je, je studie hebt afgerond; 

Je wilt eventueel samenwonen met je partner; 

Ben je 23 jaar en niet ouder dan 27 jaar; 

Je moet op dit moment inkomen hebben uit werk. 

Inkomenseisen: 

Inkomen bij 1 persoon minimaal € 28.376 – maximaal € 47.699 

Inkomen bij 2 personen minimaal € 38.501 – maximaal € 54.847 

Een inkomensverklaring 2024 van de Belastingdienst en 3 recente loonstroken dienen overlegd te worden. 

Heb je interesse? Reageer dan snel op deze advertentie! 

Kenmerken

Huurprijs totaal

Kale huur

Servicekosten

Type woonruimte

Oppervlakte

Adres

District

Locatie

Energielabel

Advertentienummer

Woongebouw

Locatie

In de buurt