Ben jij huurder van Stadswonen en ben jij op zoek naar een leuke plek voor jezelf in Rotterdam? Reageer dan op deze advertentie!
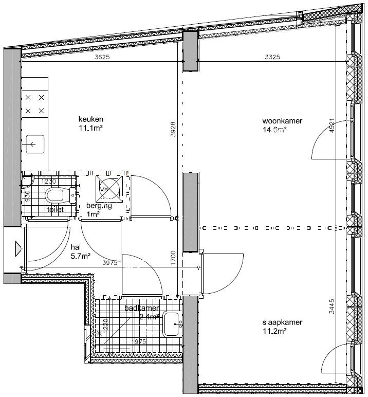
De woning is gelegen op de 11e etage van het woongebouw. Bekijk de plattegrond voor de indeling van het appartement.
Tussen de hoge kantoorgebouwen op de Kop van Zuid heb je echt het gevoel in de grote stad te wonen. In drie minuten loop je naar metrohalte Wilhelminaplein en wanneer je de Erasmusbrug over fietst, ben je zo in het centrum.
Let op! Het contract wordt aangegaan voor een periode van maximaal vijf jaren.
Inkomenseisen:
Maximaal (jaar)inkomen een-persoonshuishouden: 28.375,-
Maximaal (jaar)inkomen twee-persoonshuishouden: 38.500,-
Laan op Zuid 97f
€ 682,96
Excl. servicekosten
AppartementReageer t/m 23-10


Appartement
39m²
2 Kamers
Omschrijving
Binnenkort 2-kamer appartement beschikbaar!
Kenmerken
Huurprijs totaal
Kale huur
Servicekosten
Type woonruimte
Oppervlakte
Adres
District
Energielabel
Advertentienummer
Woongebouw
Locatie
In de buurt
Appartement
Beschikbaar vanaf
Reageer voor
04 november 2025
23 oktober 2025 23:45
Voorwaarden om te reageren
Toewijzing: door Stadswonen
Maximaal inkomen van € 28.375,- bruto per jaar
Minimum leeftijd van 23 jaar
Maximale leeftijd van 27 jaar
Doelgroepen: Huurder werkend