Woongebouw De Douane
In dit voormalige douanekantoor op het creatieve Coolhaveneiland huur je een studio of appartement. Je woont vlak bij het centrum en Historisch Delfshaven, en Het Park bij de Euromast is je achtertuin! Op de begane grond van het gebouw zitten een fitnessclub en een gezellige restaurant, waar je na het sporten je energie weer aanvult. Op jullie gemeenschappelijke daktuin ontmoet je je buren. Dit energiezuinige gebouw is volledig gasloos; je kookt elektrisch en verwarmt je huis met stadsverwarming. Klimaatbewust wonen dus.
Wil je meer weten? In de brochure vind je meer informatie.
Studio’s en appartementen voor jongeren
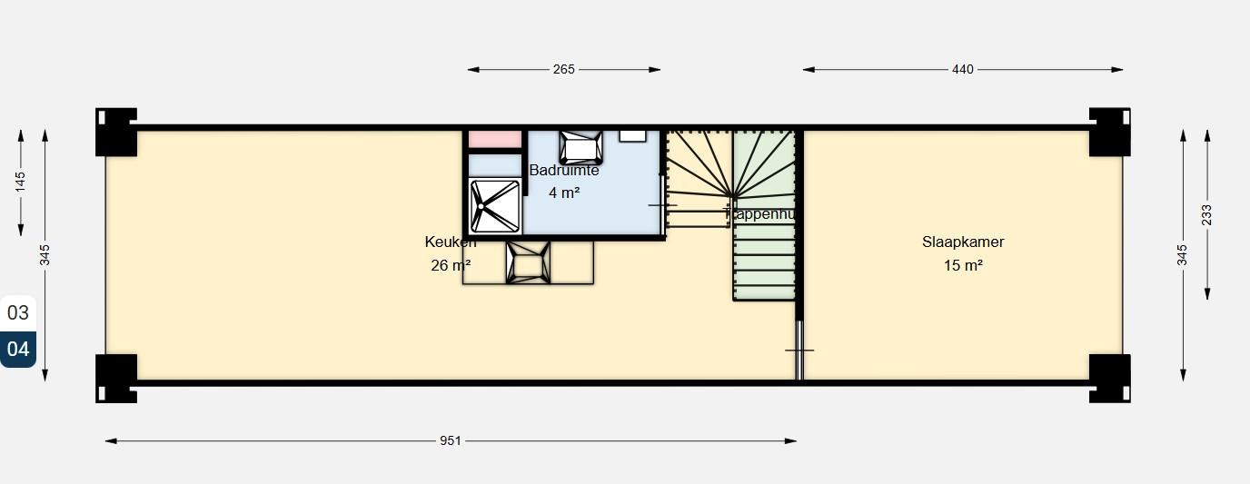
In De Douane verhuren we 85 studio’s (gemiddeld 34 m2) en 56 appartementen (gemiddeld 65 m2). Hierin heb je de keuken, badkamer en het toilet voor jezelf. Alle woonruimten hebben een berging op de begane grond. Heb je een auto? Parkeer die tegen speciaal tarief op de parkeerplaatsen bij het gebouw. De woonruimtes zijn bedoeld voor doorverhuizers: mensen die al bij ons huren, en na hun studie gaan werken.
In de buurt van de Westzeedijk
Je woont hier lekker centraal in Rotterdam West. Met tien minuten op de fiets of twee haltes met de metro ben je in het centrum. De andere kant op vind je het mooie Historisch Delfshaven, waar je een lokaal biertje drinkt. In de zomer loop je met je picknickmand richting Het Park. Op een luie zondag is Rauwdouwer je thuis, waar je een stapel pancakes bestelt terwijl je kleren schoon draaien in de wasbar. Zin in cultuur? Podium Grounds is de plek om muzikaal talent te ontdekken. Of bezoek een expo in de Kunsthal.
Wil je hier wonen? Je kan op deze studio's en appartementen reageren als je al bij ons huurt. Houd rekening met de huurvoorwaarden voor doorverhuizers.
Belangrijk om te weten: de huurprijs is exclusief kosten voor water, stadsverwarming, elektra en internet.




















